Dokumentace výrobní linky
Základní info
Klient: Výrobní společnost
Počet zaměstnanců: 30+
Země: Česká republika
Rok realizace: 2018
Vyhrazený budget: 60 000 kč
Technologie: MikroTik
Podrobnosti
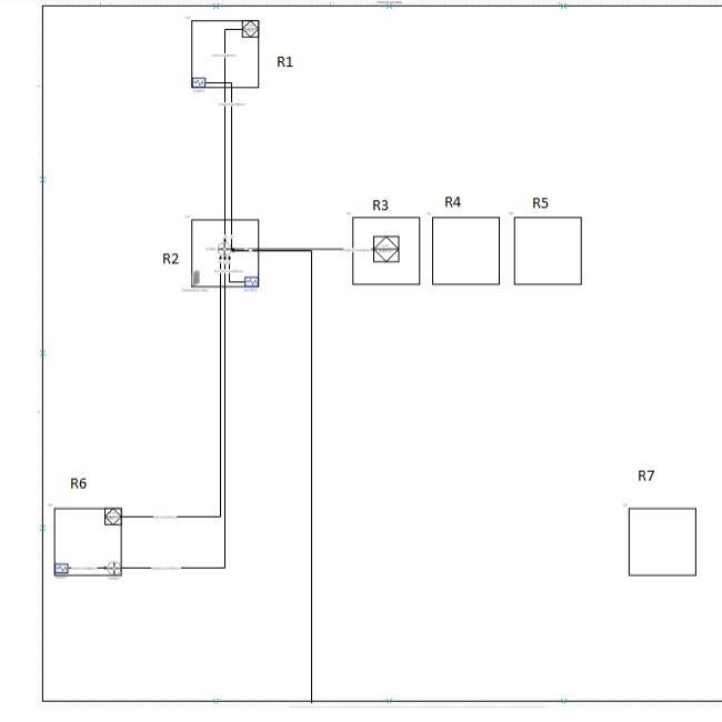
Pro moravskou společnost jsme v roce 2018 provedli dokumentaci výrobní linky. Daná činnost obnášela následující úkony
- Dokumentace fyzické kabeláže
- Zákresy topologických map
- Dokumentace jednotlivých rozvaděčů
- Suma přístupů
- Předpříprava pro technologii VLAN a tvorbu VPN koncentrátoru
Projektový plán






